为落实区委区政府关于学校体育场馆向社会开放的要求,推动社区学校融合和学校资源社会化共享,龙岗区建筑工务署在学校项目设计中,除了贯彻安全、适用、经济、绿色、美观的原则外,还要求落实文体设施开放共享理念。
一、主要做法
在设计阶段就充分考虑学校文体设施在不影响学校正常教学秩序、教学活动需要前提下对外开放的可行方案。主要做法为构建合理的空间布局和功能分区,将对外开放的文体设施布置在远离主要教学区或便于学校分隔管理的区位,同时,优化交通流线,减少社会人流对校园正常活动的影响并尽量缓解市政交通压力,为学校开办后实现文体设施对外开放提供便利条件。
二、设计案例
(一)南湾街道布澜小学新建工程

在功能布局上,动静分区,通过对场地周边环境的分析,将运动区布置于基地东侧,教学区布置于基地西侧,避免城市主干道对教学区、运动区对住宅的噪音干扰,便于运动区对外开放。
优化交通流线设计,充分利用台地地形,将运动场抬高一层,从东侧半地下层底标高开设独立交通流线与翠岭路连接,与学校主出入口人流分开,体育馆对社区开放路线相对独立,便于学校管理。
(二)黄阁北九年一贯制学校新建工程

通过双层立体交通平台实现人车分流,上层主入口广场设计风雨廊方便人行接送,同时也可作为城市公共广场。
平面布局上,图书馆、报告厅等公共教学资源设在中心区域,体育馆设置在用地东北侧,文体设施均可快速到达学校主出入口,方便对外开放。
(三)平湖中心小学改扩建工程

动静分区,在场地内部形成行政教学区、运动区及后勤生活区,并通过连廊将各功能联系起来,相互联系又互不干扰。

优化交通流线。文体区设置独立出入口,与行政教学区人流互不干扰。

空间灵活利用。室内体育馆设计时,考虑校方未来需求,功能可快速便捷地在体育场馆与文艺汇演中心间转换,提高场馆利用率,满足社区对文化体育的不同需求。
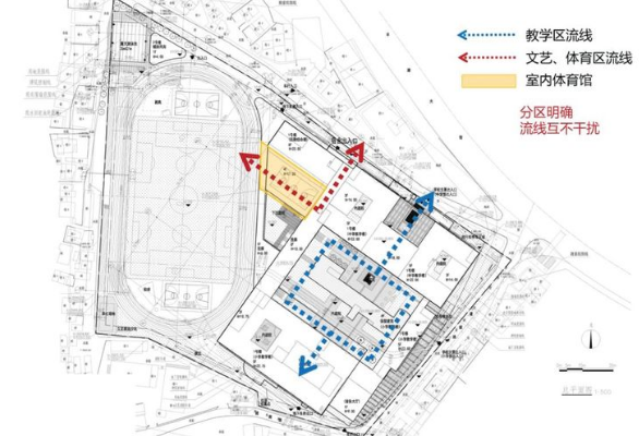
(四)龙岗区外国语学校改扩建工程

文体设施集中设置,基本位于用地西北侧较低楼层,其中体育馆、游泳馆位于负一层,运动场位于二层,图书馆及多功能厅位于一层。

设置独立出入口,在用地北侧沙园路设置向社会开放的独立出入口,可方便到达共享的文体设施,对外开放的文体流线与学校流线基本不交叉,避免对正常学校活动的影响。
三、结语
随着龙岗社会经济发展,群众对文化体育活动的需求日益增长。为缓解不断增长的文体设施使用需求,推动学校资源的社会化共享,龙岗区建筑工务署将继续在学校项目设计中贯彻文化体育设施对外开放理念,并与教育部门共同探寻图书馆、多功能厅等设施独立对社会开放、停车库错峰对社会开放的可行路径。